Skip to main content

Gemeindezentrum Manheim_ Perspektive

Gemeindezentrum Manheim_ Lageplan

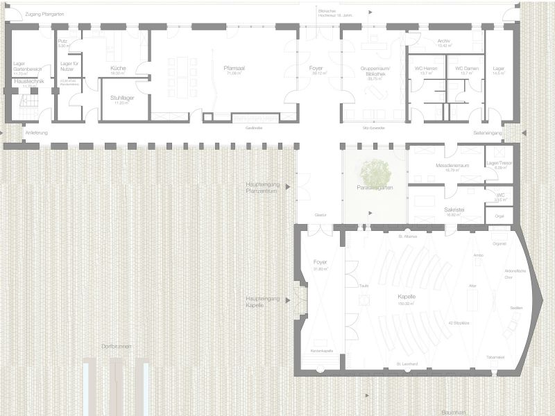
Gemeindezentrum Manheim_ Grundriss

Gemeindezentrum Manheim_ Ansicht

Gemeindezentrum Manheim_ Ansicht

Gemeindezentrum Manheim_ Diagramme

Gemeindezentrum Manheim_ Lichtstudie

Gemeindezentrum Manheim_ Lichtstudie

Gemeindezentrum Manheim_ Lichtstudie

Gemeindezentrum und Kapelle in Manheim- Neu

Eingeladener Realisierungswettbewerb/ 2014
Ulrich Königs, Ilse Königs Ruzha Dzhankova
Landschaftsarchitekten: Club L94, Köln

Der Ort Manheim muß dem Braunkohletagebau weichen und mit ihm die dortige Pfarrkirche der St. Martinus Gemeinde Kerpen. Der Ort und seine Bewohner erhalten eine Neuerrichtung in „Manheim Neu“. Unser Entwurf der neuen Kapelle wirkt als ein zeitloser Kubus aus Mauerwerk, der mit seiner in sich ruhenden Massivität eine feierliche Präsenz ausstrahlt. Das Westportal orientiert sich wie selbstverständlich zum Kirchplatz, die zwölf Meter hohe fast ganz geschlossene Südseite mit ihren feinen Lisenen begrenzen den Marktplatz nach Norden. Die Kapelle zeigt Größe, ohne groß zu sein. Sie wird zum Mittelpunkt, ohne aufzutrumpfen. Das wiederverwendete Maßwerk des Westfensters aus der alten Kirche erzählt künftigen Generationen die Geschichte des Dorfes und seiner alten Kirche.

Im Inneren setzt sich das spannungsvolle Wechselspiel aus Erinnerung und Abstraktion fort. Das Kreuzgratgewölbe des Daches erinnert an die alte neogotische Pfarrkirche und schafft einen eindruckvollen Innenraum. Das Licht welches aus dem Gewölbe von oben in die Kirche fällt, schafft wechselvolle Stimmungen, die den transzendentalen Charakter des Raumes stützen. Während in klassischen gotischen Kirchen die Wände möglichst aufgelöst sind und mit seitlichen Fenstern ausgestattet sind, ist unsere Kapelle mit fast geschlossenen Außenwänden und Dachoberlichtern ausgestattet. Wir sind überzeugt, dass die gotischen Baumeister vor langer Zeit manchmal zu ähnlichen Lösungen gekommen wären, wenn es die damalige Bautechnologie zugelassen hätte. Heute versuchen wir lediglich, die Jahrhunderte alte Geschichte des Kirchenbaus mit modernen Mitteln fortzuschreiben – das Neue entsteht immer aus der Variation des Bestehenden.

Auch das Einsetzen von alten Bauteilen in ein neues Bauwerk hat eine lange baugeschichtliche Tradition. Diese sogenannten Spolien waren einerseits Ergebnis eines pragmatischen, ressourcenschonenden Bauprozesses unter Verwendung wertvoller Bausubstanz, andererseits aber auch Bedeutungsträger einer vergangenen Baukultur. Wir integrieren auf diese Weise das Maßwerk des Westfensters samt Verglasung und ein altes Doppelfenster als Blickfang in den Paradiesgarten. Diese Bauelemente bauen zusammen mit weiteren übernommenen Artefakten im Innenraum (Taufstein, Pfarrpatrone, etc.) einen spannungsvollen Kontrast zu dem ansonsten abstrakt weiß immateriell gehaltenen Innenraum. Das dunkle, warme  Holz der bestehenden (oder neu angefertigten) Kirchenbänke verstärkt diesen Spannungsbogen zwischen Erinnerung / Kontinuität und dem Neuen.

Dem Eingang zum Pfarrzentrum gegenüber liegt der Paradiesgarten, ein nicht betretbarer Außenraum der gleichzeitig der Belichtung (mattierte Glasscheiben) des Sakristeibereiches dient. An diesem Scharnier zwischen Kapelle und Foyer kreuzen sich alle Wege. Die Funktionsräume des Gemeindezentrums sind auf denkbar einfache Weise entlang eines arkadenförmigen Ganges organisiert, der die lange Platzwand zum Kirchplatz bildet. Die Bücherei / der Grupperaum nimmt mit seiner zentralen Lage am Paradiesgarten eine besondere Stellung ein. Der teilbare Pfarrsaal, das Foyer und die Bücherei lassen sich flexibel zu größeren Raumeinheiten zusammenschalten. Der Ost- und der Westzugang an Ende des Arkadenganges dienen der störungsfreien Anlieferung und ggf. als Sakristeizugang.  Alle Räume des Gemeindezentrums sind über bodentiefe Verglasungen zum Pfarrgarten orientiert und ermöglichen somit einen direkten Außenzugang.

 

Der kleine Pfarrgarten versteht sich im Sinne eines `hortus conclusus` als vegetative Gegenwelt zum öffentlichen Marktplatz. Ein grüner, ruhiger Rückzugsort im Herzen der Siedlung, der zudem für Aktionen wie `Messe unter freiem Himmel` oder andere kirchliche Festivitäten genutzt werden kann. Die Mauer, die den Pfarrgarten umgibt soll aus wiederverwendeten Ziegeln der alten Kirche errichtet werden, die neun Steinkreuze stehen im Inneren entlang der Westseite der Mauer unter Bäumen.

 

Das Gemeindezentrum und die Kapelle werden als einschaliger Massivbau mit hochwärmedämmenden Ziegeln errichtet, die Deckenkonstruktionen sind aus Stahlbeton. Der Glockenturm ist aus statischen Gründen komplett als Stahlbetonbau konzipiert. Alle Bauteile werden außenseitig mit einem geglätteten Kellenstrichputz versehen, in den im selben  Arbeitsschritt eine Weißkalkhydratschlämme eingearbeitet wird