Skip to main content

Hessischer Landtag_ Modellfoto

Hessischer Landtag_ Modell

Hessischer Landtag_ Perspektive Innenraum

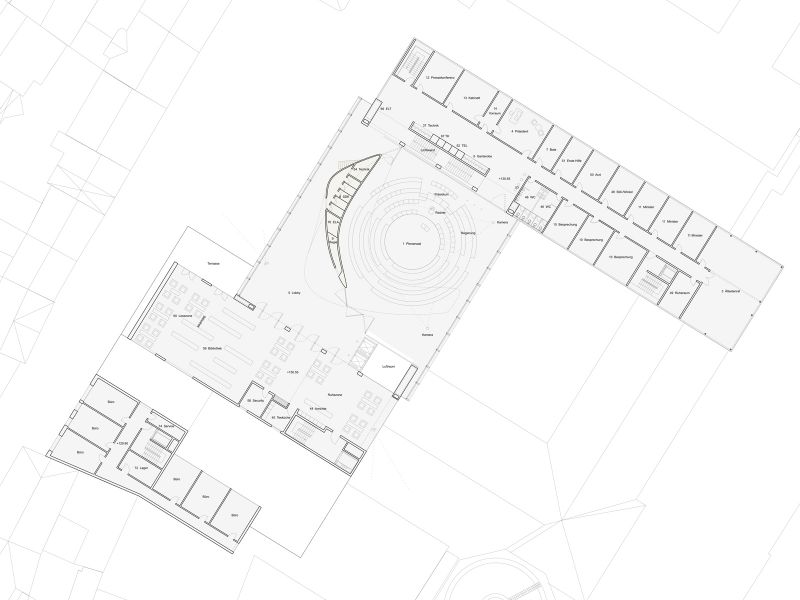
Hessischer Landtag_ Grundriss

Hessischer Landtag_ Grundriss

Hessischer Landtag_ Schnitt

Hessischer Landtag_ Modellfoto

Hessischer Landtag_ Modellfoto

Hessischer Landtag_ Perspektive Innenraum

Plenarsaalgebäude Hessischer Landtag Wiesbaden

Eingeladener Realisierungswettbewerb/ 2002
3. Preis
Ulrich Königs,André Rethmeier, Christoph Schlaich, James Wong
Akustik: Graner + Partner, Bergisch Gladbach
Statik: ARUP GmbH, Düsseldorf
Lichtplanung: A. Hartung, Köln

Demokratie braucht Offenheit und permanenten Austausch von Ideen und Meinungen zwischen allen Menschen des Landes. Das neue Plenarsaalgebäude des Hessischen Landtages soll daher Offenheit und Transparenz vermitteln. Dadurch kann der wichtige Bezug zwischen den Bürgern und den von ihnen gewählten Parlamentariern nicht nur symbolhaft auf das Bauwerk übertragen werden, sondern tatsächlich auch entstehen. Diese Öffnung des Gebäudes ist eine Geste in zwei Richtungen: Zum einen die Herstellung von Öffentlichkeit für die Bürger als eine Einladung „Ihren“ Landtag zu betreten. Zum anderen die Öffnung des Plenums nach Außen als Geste der Hinwendung zur Stadt und zum Land. Diese beiden Denk-Richtungen von Offenheit sehen wir durch unsere Eingangshalle und das darüber liegende Plenum verwirklicht.